DATENSCHUTZERKLÄRUNG
Verwaltungsbau
Handel + Gewerbe
Wohnbauten
Mehrfamilienhaus Wesel
2020
Wohnhaus III
2019
Umbau Wohnhaus R.
Stuttgart
2017
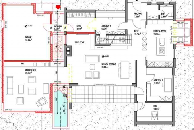
Erweiterung Wohnhaus D
Lingen
2016
Neubau Reihenhäuser Baugebiet Neuer Wall Ost
Lingen
2015/2016
Neubau Doppelhäuser
Lingen
2015
Neubau Wohnbebauung
Düsseldorf
2015
Umbau Wohnhaus B.
Hamburg
2014
Wohn- und Geschäftshaus
Düsseldorf
2014
Wohnhaus I
Düsseldorf
2014
Neubau Wohnhaus I
Düsseldorf
2012
In den Sandbergen
Lingen
2011
Wohnhaus S
Lingen
2011
Wohnhaus K
Mettmann
2007
Wohnhaus I
Düsseldorf
2006
Houtong Anlage
Beijing
2005
Anbau Wohnhaus S
Lingen
2003
Sakralbauten
Bildung + Sport
Sozialbauten
Umbau + Sanierungen
Innenausbau
Erweiterung eines Einfamilienwohnhauses in Lingen.
Bauherr: privat
Hansa Allee 42 40547 Düsseldorf Fon 0211.550271-0 Fax 0211.550271-11
info@brunobraun-architekten.de